Calling café owners to become heart of the hub
Expressions of interest are being sought for a proposed commercial kitchen or food related business in the new Kaikohe Library and Civic Hub.
The hub facility, located on the corner of Broadway and Raihara Street, is currently under construction and expected to be completed later this year.
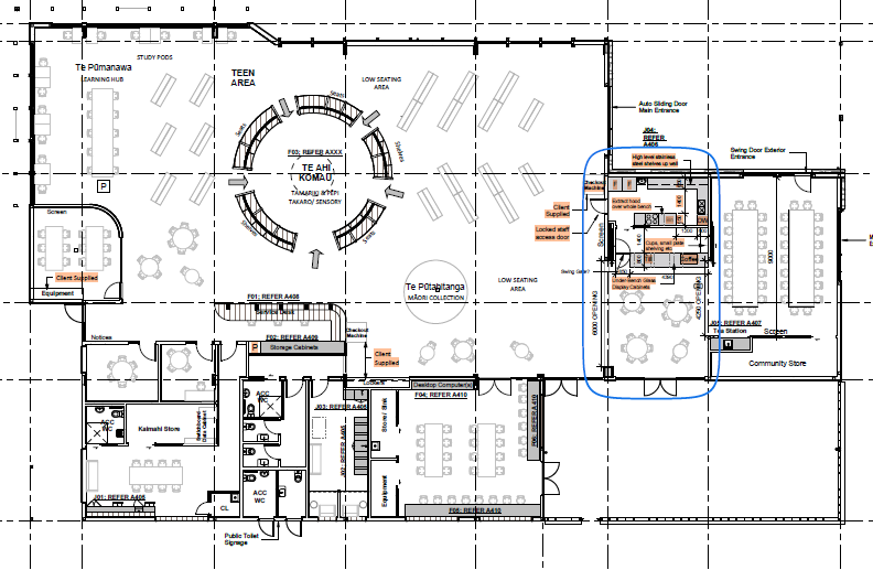
The kitchen space is designed to be self-contained and can be closed off from the main library. It can also operate in conjunction with an adjacent community room if, and when, required. An indicative floor plan is available showing the layout and location of the 65m² space within the hub.
The food business or café will supply to Kaikohe Library and Civic Hub customers, with opening times likely to align with library hours of Monday to Friday, 9am to 5pm and Saturdays, 9am to 1pm.
The target date for commencing operation is October 2026.
Rent estimates per annum include public car parking but exclude the commercial kitchen fit-out, outgoings and GST.
Interested parties can call 0800 920 029 to ask the Property Management Team for more information.
For background information on Te Āta Haere – the project to build the Kaikohe Library and Civic Hub – go here.
Below - the area circled in blue indicates the proposed food business location within the Kaikohe Library and Civic Hub facility.

Last updated: 22 Apr 2026 8:39am
ℹ️ You can also subscribe to our monthly newsletter to receive a summary of the latest news and updates from the district, delivered directly to your inbox. Sign up here.